Joe’s Wall
People often have conflicted relationships with their possessions. At best, objects resonate with our experience. These objects can be embedded with beauty, knowledge and utility. At worst, our possessions oppress us with their psychological burdens. These are the objects that end up in the back of our closets, in our basements, or in our storage lockers. For one reason or another, we can’t bring ourselves to give them up.
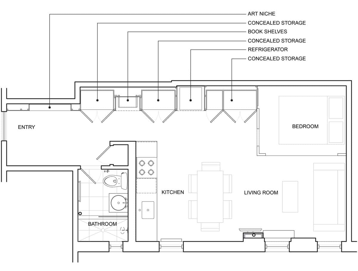
The close quarters of a New York studio apartment makes these relationships ever more important. So in this apartment, we used an undulating slatted wood wall to organize the space and to negotiate our clients’ relationship with his possessions. Near the entry, the wall forms a space for two African painting and a sculpture. Further into the apartment, the wall pushes back to create space for bookshelves. Adjacent to the kitchen, the wall opens up to accommodate the refrigerator. Between these areas of display, the wood slats conceal closets for clothing storage. In the living room, the wall expands to create a space large enough for a full size bed. Not only are the client’s objects juxtaposed with each other (art objects, souvenirs, books, food) but the objects are juxtaposed with the client himself as he gets into bed.
Location
- Brooklyn, NY



